中铁山桥(南通)有限公司
新闻动态

新闻动态

2023-09-09

中铁山桥集团有限公司常泰长江大桥CT-A6标安全通道采购招标文件

 招标公告

中铁山桥集团有限公司

常泰长江大桥CT-A6标安全通道采购

公开招标公告

(招标编号:NTGS2023-常泰桥安全006

1、项目概况与招标内容

1.1项目概况:中铁山桥集团有限公司根据常泰长江大桥施工生产要求,为确保该项目建设的安全实施,对常泰大桥安全通道进行采购。

1.2招标内容: 具体招标的物资及数量详见附件1.1

2、投标人资格要求:

2.1在中国境内注册,年检合格,具有法人资格,能独立承担民事责任;经税务部门注册登记核准的一般纳税人,符合投标项目经营范围。

2.2投标人注册资本不少于200 万元(含200万元)人民币,银行资信状况良好。

2.3投标人具有良好信誉和服务水平,无违法或违规、履约不良、质量不良等任何不良行为反映或记录。

2.4本次招标不接受联合体投标。

2.5两个及以上投标人在同一包件存在:法定代表人为同一人,或母公司、全资子公司及控股公司关系,不得在同一包件中同时投标。

3、技术质量要求:

3.1、满足国家相关标准及招标人使用要求。

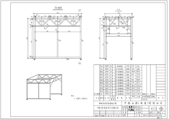
1)顶部防护钢板厚度为3mm,结构支撑钢板厚度为4mm,结构用方管规格为80mm*80mm*6mm,下方配备4个万向轮,单个安全通道规格为3m*1.7m*2.5m,具体见下方设计图(图1)。

2)安全通道表面需要做防锈处理,同时达到安全目视化效果。


中铁山桥集团有限公司常泰长江大桥CT-A6标安全通道采购招标文件(图1)

1:安全通道设计图

3.2、投标方在任何情况下均不免除对所供产品承担的质量责任。

3.3、招标方应对投标方所供产品进行复验,产品质量最终判定以招标方复验结果为准。

4.对参与投标人的资格审查方式:

本次招标采取资格后审的方式。

5、发布招标公告的媒介

本次招标公告在中铁山桥(南通)有限公司官网(http://www.crshi.cn/)上发布。

6、招标文件的获取:

6.1有意参加此次投标的投标人,需在中铁山桥(南通)有限公司官网(http://www.crshi.cn/)上获取招标文件并参与投标。

6.2招标文件不再以纸质版发出。有意参加投标的潜在投标人,请在中铁山桥(南通)有限公司官网查看招标公告并下载招标文件,并于2023年9101000分至20239151000分提交《确认投标函》(详见附件1.2)。

6.3提出疑问时间:投标人对招标文件提出疑问的,须在20239141000分前。

6.4澄清、补遗时间:对20239151000分提交的所有问题,统一答复将于20239151700前由招标人以电子邮件方式回复至投标人指定的电子邮箱(答复包括对需澄清问题的解释,不包括问题的来源),招标人不再另行通知各位潜在投标人,并视为潜在投标人已知悉澄清内容。

7.投标文件的递交:

7.1本次招标投标文件的递交截止时间为20239231500分前,投标人需按招标文件要求于20239231500分前邮寄至招标人处,密封完好的纸质版投标文件。

7.2开标地点:中铁山桥(南通)有限公司1号楼二楼1202会议室。

7.3开标时间:20239231500(北京时间)

7.4投标文件必须在规定截止时间前递交。逾期送达的或者未送达指定地点的投标文件,招标人不予受理。

7.5上述安排如有变化,招标人将通过中铁山桥(南通)有限公司官网(http://www.crshi.cn/)发布通知。

8.投标保证金的缴纳:本次招标无要求

9.招标人信息及联系方式:

招标人:中铁山桥集团有限公司

开标地址:江苏省南通市如皋市如皋港区文晋路6

邮编:226532

联系人: 亢恺

联系电话:13773808923

邮箱:374835161@qq.com

开户名称:中铁山桥集团有限公司

开户银行:工行秦皇岛山海关支行 

    号: 0404 0105 0930 0000 251

  中铁山桥集团有限公司            

                                                                                                                               2023年9 9

招标文件下载地址:/dpadmin/Tacod_editor/attached/file/20230909/20230909100929632963.docx

上一篇:中铁山桥(南通)有限公司废油漆渣处置项目(AJB2023-环保009)流标说明
下一篇:中铁山桥(南通)有限公司张靖皋长江大桥ZJG-C1标场地租赁流标说明